Register Sign In
Refine Search

161 Tranquil Mirror Lake Court , Unit Lot 9, Clermont, FL 34711

$2,393,268

28 Total Photos [Click to View All]

Property Description

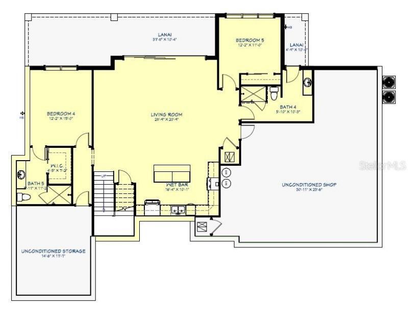
Pre-Construction. To be built. Lakefront Home! Presenting; The Hampton by Trilogy Homes, an architecturally refined lakefront residence designed for elevated everyday living within an exclusive gated luxury community. Perfectly positioned on Lot 9 a premier homesite offering approximately 82 feet of direct lake frontage, this property enjoys serene water views, enhanced privacy, and a rare connection to natural beauty-creating an extraordinary setting for a custom home of distinction.Thoughtfully composed and spanning 4,450 sq ft of conditioned living space (over 7,100 sq ft total), The Hampton blends architectural presence with warmth, comfort, and intentional design. Layered natural light, balanced proportions, and seamless indoor-outdoor transitions create a residence that feels both elegant and effortless. The main floor features the primary suite, a grand great room, designer kitchen with an expansive island and walk-in pantry, dedicated dining room, two additional bedrooms, a full bath, powder room, laundry room, and an oversized garage. Covered and uncovered balcony spaces extend the living experience outdoors, capturing elevated lake views and providing exceptional space for relaxation or entertainment.The lakefront lower level includes two additional bedrooms and a full bath, a powder bath, and a spacious secondary living room with a built-in wet bar-ideal for gatherings, hosting guests, or multigenerational living. Multiple lanai areas provide direct access to the lakeside environment and future poolside living opportunities. A substantial unairconditioned shop and expansive storage areas add meaningful flexibility for hobbies, recreation, or specialty storage needs. Designed with adaptability in mind, Trilogy Homes offers opportunities to personalize The Hampton while maintaining its timeless architectural integrity.Situated within Mirror Lake, an intimate gated community of just 21 homesites, residents enjoy an uncommon pairing of lakefront serenity and wide-open golf course vistas from the adjacent Clermont National Golf Course. The setting offers privacy, exclusivity, and a lifestyle defined by natural beauty and homes with architectural distinction. This exceptional lot and custom designed home present a rare opportunity to build a luxury residence in one of Central Florida's most captivating lakefront enclaves, offering privacy, exclusivity, and a thoughtful architectural vision. More than a place to live, Mirror Lake is a retreat for those who appreciate distinction, natural beauty, and a lifestyle designed with intention and differentiation. Close to all things but miles away in Lifestyle, this unique homesite is one of the most captivating sites in Mirror Lake-offering a timeless setting and an extraordinary canvas for your custom home. Call us to reserve this extraordinary lot while you meet with Trilogy Homes to explore this home design further and take next steps to making Mirror Lake your 'Dream Home Come True!

161 Tranquil Mirror Lake Court , Unit Lot 9 | MLS# O6391872

This single family home located at 161 Tranquil Mirror Lake Court , Unit Lot 9, Clermont, FL 34711 is currently listed for sale with an asking price of $2,393,268. This property was built in 2027 and has 5 bedrooms and 4 full and 1 partial baths with 4450 sq. ft. Tranquil Mirror Lake Court , Unit Lot 9 is located in the MIRROR LAKE subdivision. Search MIRROR LAKE real estate on katherinef.watsonrealtycorp.com today.

Property Features

Property Type: Residential - Single Family
Cooling: Central Air
Garage: 2 car attached
Heating: Electric
Lot Size: 0.32 Acres
Roof Type: Tile
Stories: 2.0
Taxes: $3,002
Year Built: 2027
Square Feet: 4,450

Amenities

Eat-in Kitchen
Open Floorplan
Other

Feature Descriptions

Appliances: Dishwasher, Microwave, Range, Refrigerator
Association Amenities: Gated
Body of Water: MIRROR LAKE
Builder: TRILOGY HOMES
Community Features: Gated Community - No Guard
Directions: W Colonial Drive to north onto Hancock Road, Right onto Old Hwy 50 to Mirror Lake community approx. 1 mile on right.
Exterior: Block
Flood Zone Code: X
Flooring: Tile
Foundation: Slab
Frontage Lake: 82
HOA Fee: 500/ Annually
HOA Y/N: Yes
Home Warranty Y/N: No
Lot Dimensions: 0.32
Model: THE HAMPTON
Ownership: Fee Simple
Pets Allowed: Yes
Pool: Above Ground
Property Attached Y/N: No
Property Sub-Type: Single Family Residence
Sewer: Private Sewer
Showing Instructions: Call Listing Agent 2,Call Listing Agent, Call Listing Office
Special Sale Provisions: None
Special View Info: Water
Swimming Pool: Yes
Utilities: Electricity Available, Natural Gas Available, Water Available
Water: Public
Water Access: Lake
Water Access Y/N: Yes
Waterfront Features: Lake Front
Water View: Lake

Room Sizes

Kitchen: 17x18
Primary Bedroom: 16x15
Game Room: 19x23
Bedroom 2: 14x11
Bedroom 3: 14x11
Bedroom 4: 12x12
Bedroom 5: 12x11
Living Room: 28x20
Balcony/Porch/Lanai: 37x12

Listed By / Shown By

Listed By

Agency Name: RESOLUTE DEVELOPMENT GROUP, LLC
Agency Contact: 407-217-2277

IDX logo

Estimate Your Payment

Estimated Payment

$ 12,488.91 per month $11,540.70 Principal & Interest $250.17 Property Tax $698.04 Homeowner's Insurance

Change Payment Information

%
years/fixed
yearly
yearly (est.)
(Payments are an estimate and may vary by lender)

Login to My Homefinder

Pixel